Parc des expositions Agora
| |||||
|---|---|---|---|---|---|
| |||||
| Catégorie | Culturelle | ||||
| Activités | |||||
| |||||
| Localisation | Futura | ||||
| Adresse | Plaza del arte | ||||
| Transports | |||||
| Autres infrastructures | |||||
Architecture
Fonctions
Cet espace urbain composé de plusieurs bâtiments est destiné à accueillir des expositions temporaire.
Conférences
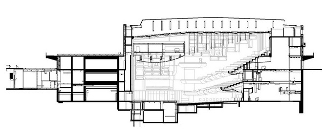
Cette salle de 2 660 places est destinées à accueillir des conférences.
L'architecte Reddonquixote c'est inspiré du Hamer Hall de Melbourne.
C'est une salle d'une grande qualité acoustique.
Elle dispose du matériel nécessaire pour animer est retransmettre les conférences.
Situation
Situé dans le quartier de Futura mais aussi proche des universités d'Universidades il est facile d'accès car proche de la station Esperanza.
Ce parc des expositions est proche de la Plaza del arte .
Images
| Ceci est une page du Portail culturel et scientifique | ||
|---|---|---|
| Découvrez les institutions culturelles, scientifiques et éducative de Simland. | ||
| Quartiers et communes d' Utopia | |
|---|---|
| Bahia Moais | Bananas | Barrio politico | El porto | Estuario | Futura | la Palud | Las Decaro | Los salinas | Porto cacao | la Punta | Quartier Lumière | San Miguel | Universidades | Vieja Ciudad |






